Luftaufnahme der Bauoberleitung an der Wallstraßenbrücke Schwerin: komplexe Baustelle mit Gleisanlagen, Kran und Brückenneubau im innerstädtischen Bereich während der Bauüberwachung.

Brücke Wallstraße Schwerin

Bauoberleitung + Bauüberwachung

< Zurück zur Übersicht

  • Baubeginn:
    07/2021

    Vorläufige Verkehrsfreigabe:
    04/2023

    Ausführung Medienkanal:
    01/2024 – 11/2024

    Baukosten:
    ca. 24.000.000 €

     

  • Bauherr:
    Landeshauptstadt Schwerin

    AN Bauleistung:
    Matthäi Bauunternehmen GmbH & Co. KG, Leezen

    Projektsteuerung:
    Thomas Bauer

    Ausführungsplanung KIB:
    IBD Ingenieurgesellschaft mbH

    Bauoberleitung KIB:
    Brückenköpfe GmbH

    BÜ KIB Brücke:
    Brückenköpfe GmbH

    BÜ Tiefbau, SiWaWi:
    Ingenieurbüro BAUWAS GmbH

    BÜ Gleisanlagen:
    PLASS + ENGEL Ingenieurgesellschaft mbH

    BÜ Ausrüstung:
    SWS/NGS Stadtwerke Schwerin GmbH

Bauüberwachung an der Wallstraßenbrücke Schwerin: neu hergestellte Brückenkonstruktion über Gleisanlagen mit angrenzender Bestandsmauer im Rahmen der Bauoberleitung im innerstädtischen Brückenbau.
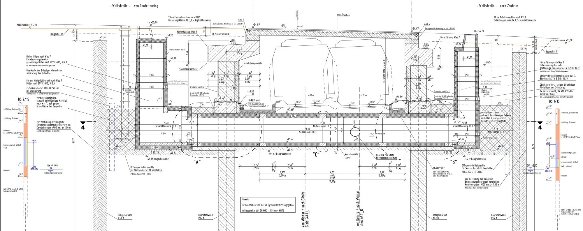
Bauoberleitung und Bauüberwachung Wallstraßenbrücke Schwerin: technische Bauwerksübersichtszeichnung im Längsschnitt der Brückenköpfe mit Darstellung von Tragwerk und Gründung.

Wesentliche Merkmale

Stahlverbundbrücke
(Walzträger in Beton)

Gesamtlänge 11,70 m

Gesamtbreite i. M. 18,50 m, Fahrbahnbreite 13,65 m

33 HEM 360 Hauptträger, in Längsrichtung aufgefächert

überschnittene Bohrpfahlwand als Widerlager und Baugrubenverbau,
2-fach ausgesteift für Herstellung Medienkanal

Zwangspunkte:
– Direkt angrenzende Bebauung
– Bestandsstraßen, -medien und -leitungen
– Elektrifizierte Gleisanlagen    






    • Baubegleitende Munitionssondierung

    • Innerstädtisches, bahnkreuzendes Bauwerk

    • Interimslösungen für die Ver- und Entsorgungsleitungen während der gesamten Bauzeit

    • Aufrechterhaltung der Fußgängerquerung mittels Behelfsbrücke über die Anlagen der DB

    • Bodenverbesserung mit HDI im Hinterfüllbereich Widerlager und unter Bebauung

    • Herstellung überschnittene Bohrpfahlwände im innerstädtischen Bereich

    • Absenken der Bahngleise um bis zu ca. 40 cm auf einer Länge von ca. 350 m

    • Störungsfreies Arbeiten entlang der Gleisanlage

    • Sicherstellung Standfestigkeit Bahnbegleitende Stützwand

    • Mehrfach ausgesteifte Baugruben

    • Beengte Platzverhältnisse

    • Medienkanal in Straßenachse unter Gleisanlage mit Kreuzung Tiefenentwässerung
      (Ausführung 2024)

Bauoberleitung und Bauüberwachung Wallstraßenbrücke Schwerin: Absenkkonstruktion des Überbaus mit Pressvorrichtung und Stahlpaketen im Brückenbau.
Bauoberleitung und Bauüberwachung Wallstraßenbrücke Schwerin: Arbeiten im Bereich der Brückenköpfe mit Baustelle unterhalb der Brücke und eingesetzten Bauarbeitern.
Bauoberleitung und Bauüberwachung Wallstraßenbrücke Schwerin: Schalungsbau für Kopfbalken an der Bahntrasse mit Gerüstkonstruktion im innerstädtischen Brückenbau.
Bauoberleitung und Bauüberwachung Wallstraßenbrücke Schwerin: fertiggestellte Brückenrampe mit Geländer über Bahntrasse im innerstädtischen Umfeld.
Bauoberleitung und Bauüberwachung Wallstraßenbrücke Schwerin: Bewehrungsarbeiten und Schalung eines Medienkanalsegments mit Gerüstkonstruktion im Brückenbau.
Bauoberleitung und Bauüberwachung Wallstraßenbrücke Schwerin: nächtlicher Einbau von WIB-Trägern mit Kran und Baustellenbeleuchtung im innerstädtischen Brückenbau.
Bauoberleitung und Bauüberwachung Wallstraßenbrücke Schwerin: Baugrube mit Stahlträgern und Holzverbau für Leitungsbau im innerstädtischen Bereich.

< Zurück zur Übersicht